This rare multi-family home presents a unique investment opportunity, featuring four well-designed units. Nestled in the charming town of Jacksonville you're just 23 minutes from the exhilarating slopes of Mount Snow ski resort. The property offers two one-bedroom units on the first floor, alongside a spacious two-bedroom unit and a generous three-bedroom unit on the second floor. Enjoy the large wrap-around porch and separate entrances that give tenants both privacy and comfort. Each unit showcases high ceilings and abundant natural light, providing inviting living spaces with thoughtful floor plans. With ample parking and yard space, this property caters to both tenants and owner-occupants alike. Location is key, and this home is just a short walk from a local grocery store and restaurant, a delightful bakery the post office, town hall, the Moover bus stop and the picturesque Gates Pond. Conveniently positioned near the intersection of Route 112 and Route 100, it serves as a prime route for visitors heading to Mount Snow. Don't miss out on this incredible opportunity to own a property that perfectly blends investment potential with a desirable lifestyle! November 1st rent increases overall revenue to an additional $495.00 monthly to the gross income for a total of $55,620.

Listing Tools

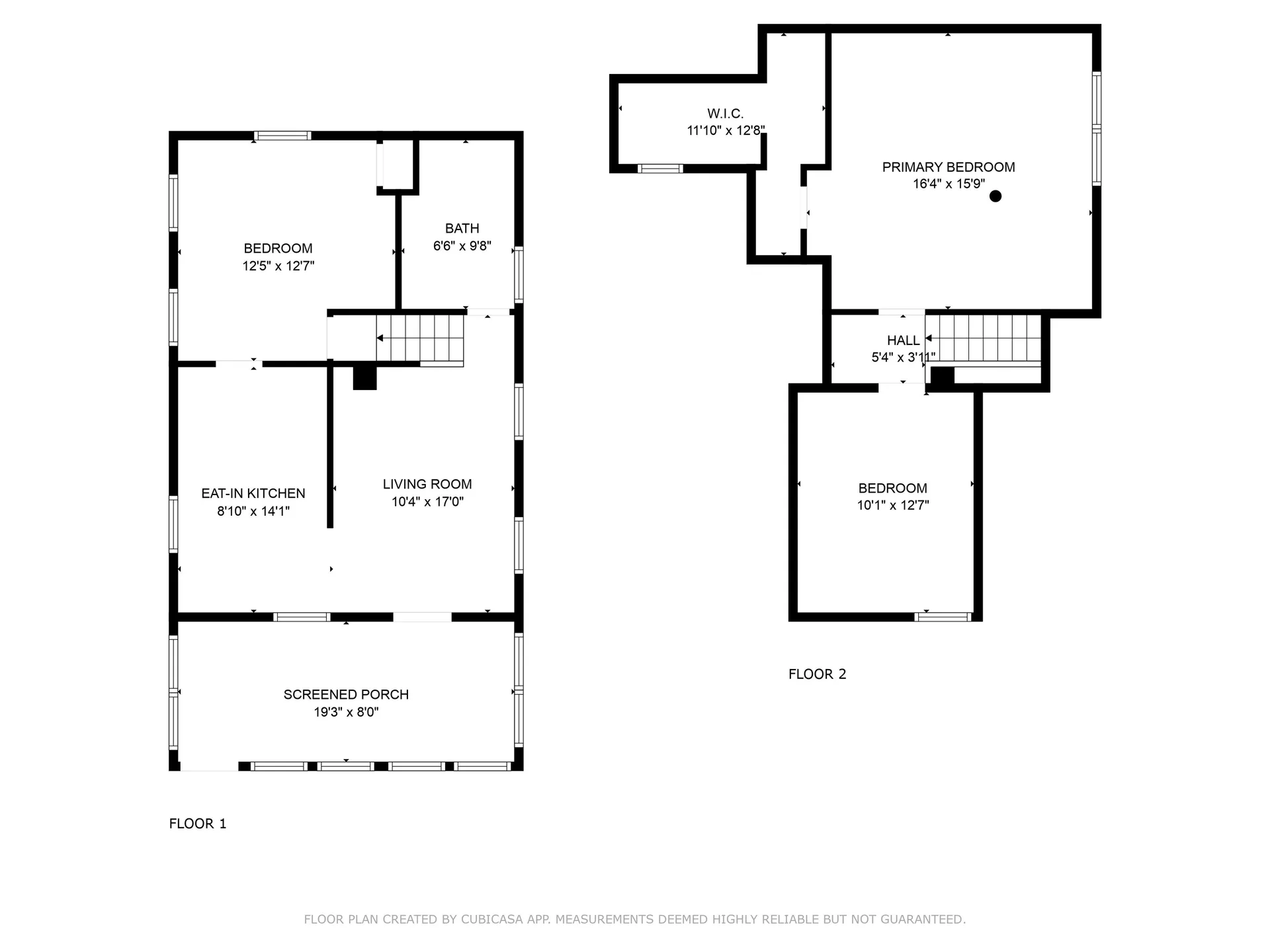
Property Details of 89 Gates Pond Road

Property Details

Interior Features

Exterior Features

Utilities and Appliances

Community

Map Location

Broker Reciprocity 

Copyright 2026 PrimeMLS, Inc. All rights reserved. This information is deemed reliable, but not guaranteed. The data relating to real estate displayed on this display comes in part from the IDX Program of PrimeMLS. The information being provided is for consumers’ personal, non-commercial use and may not be used for any purpose other than to identify prospective properties consumers may be interested in purchasing. Data last updated January 23, 2026 3:37 AM EST

 

Hi there! How can we help you?

Contact us using the form below or give us a call.

Send Us A Message:

I agree to receive marketing and customer service calls and text messages from Buffum Realty. To opt out, you can reply 'stop' at any time or click the unsubscribe link in the emails. Consent is not a condition of purchase. Msg/data rates may apply. Msg frequency varies. Privacy Policy.

Do not fill in this field:

This site is protected by reCAPTCHA and the Google Privacy Policy and Terms of Service apply.

Hi there! How can we help you?

Contact us using the form below or give us a call.

Send Us A Message:

Do not fill in this field:

This site is protected by reCAPTCHA and the Google Privacy Policy and Terms of Service apply.

Hi there! How can we help you?

Contact us using the form below or give us a call.

Send Us A Message:

Do not fill in this field:

This site is protected by reCAPTCHA and the Google Privacy Policy and Terms of Service apply.

Do not fill in this field:

This site is protected by reCAPTCHA and the Google Privacy Policy and Terms of Service apply.

Do not fill in this field:

This site is protected by reCAPTCHA and the Google Privacy Policy and Terms of Service apply.

Do not fill in this field:

This site is protected by reCAPTCHA and the Google Privacy Policy and Terms of Service apply.

$

Do not fill in this field:

This site is protected by reCAPTCHA and the Google Privacy Policy and Terms of Service apply.